Project
Verbouwing van een villa in Gelderland
Voor een gezin wat na een aantal jaar in Afrika te hebben gewoond, weer in Nederland is komen wonen heb ik dit totaalontwerp gemaakt.
Ze kochten deze villa in een dorp in Gelderland met het oog op een verbouwing. De wensen van het gezin: ruimte voor verbinding, meer licht in het donkere pand, een kangoeroewoning voor hun dochter, genoeg plek voor het uitoefenen van creatieve en muzikale hobby’s en een ruimte met comfort voor de ouders zodat ze zich kunnen terugtrekken en relaxen.
Ze wilden graag de kleuren van het Afrikaanse landschap terug laten komen in het interieur. Daarnaast beschikken ze zelf over kunst, foto’s en Afrikaanse stoffen en keramiek wat ook een plek moet krijgen in het interieur.
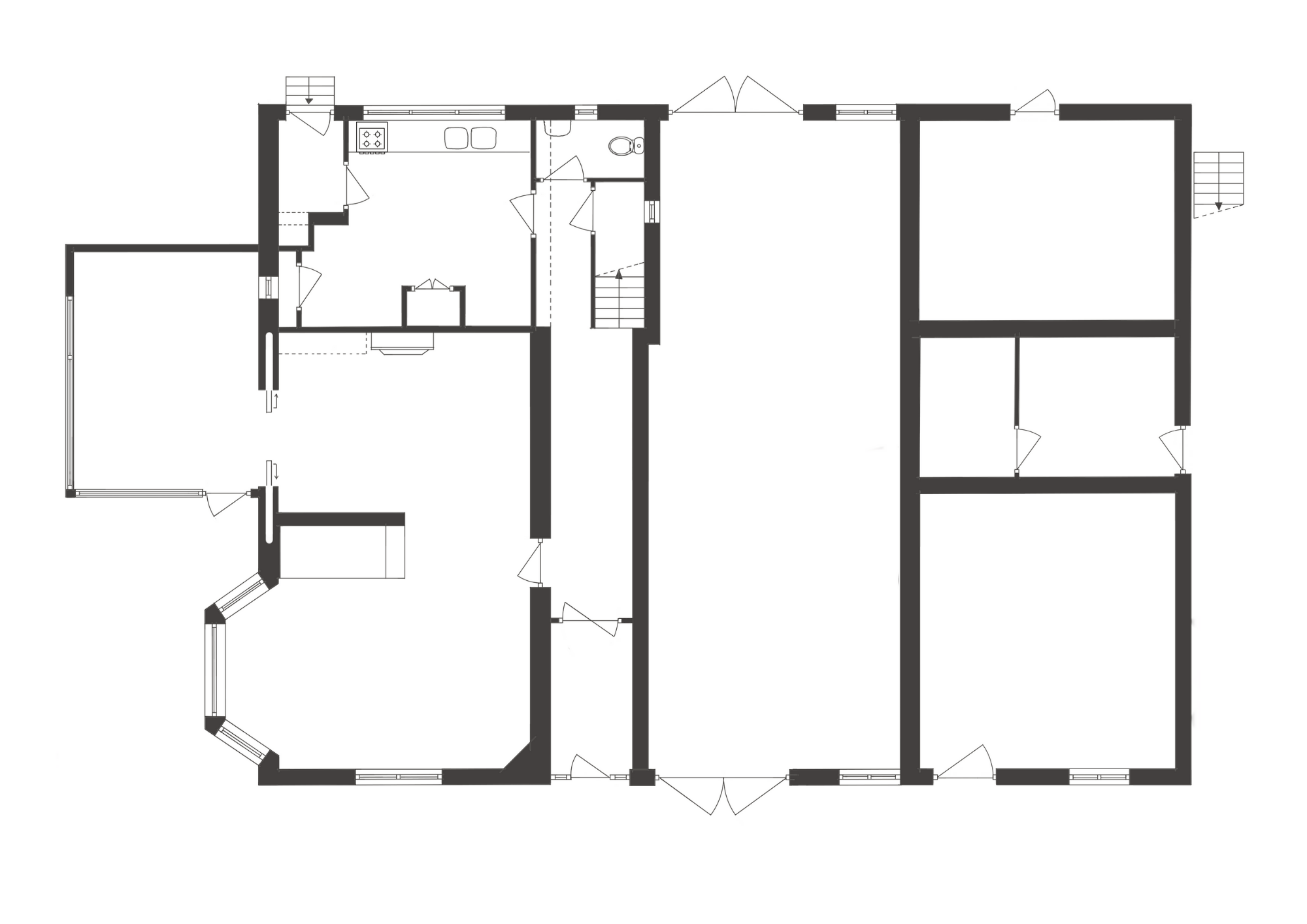
Het ontwerp
De villa is donker en er mocht niets aan de gevel veranderd worden. Om te zorgen dat er ruim voldoende daglicht in de eetkamer valt, is een vide gecreëerd en zijn er lichtstraten toegepast in het dak. Bij de keuken is een glazen voorportaal gemaakt, zodat de deuren op kunnen blijven en er ook daar meer daglicht naar binnenvalt.
In de living komt een maatwerkkast als roomdevider. Zo ontstaan er 2 zithoeken. Eén voor de tv en één voor de haard. In de serre, een heerlijke plek om te lezen of een spelletje te doen komt een coffeecorner.
Op de verdieping is een nieuwe indeling gemaakt. Er zijn wanden doorgebroken daar waar het bouwtechnisch kon en nieuwe wanden geplaatst. Zo is er een ruime slaapkamer ontstaan voor de ouders, met inloopkast, inbouwsauna en badkamer ensuite. Voor de kinderen is de badkamer vergroot. En in het atelier is er ruimte voor een doka.
Wil jij ook een slimme indeling met meer licht, ruimte en comfort in huis?
